SHIMADA秋葉原ビルのテナント募集中区画
| 階数 | 面積 | 賃料(共益費含む) | 保証金 | 入居可能日 | 検討リスト | 詳細 |
|---|---|---|---|---|---|---|
| 2 | 25.43坪 | 応相談(応相談) | 応相談 | 2026年4月上旬 |
…新着物件
アクセス
SHIMADA秋葉原ビルの物件情報
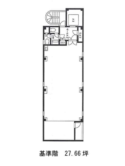
SHIMADA秋葉原ビル(千代田区岩本町)は岩本町駅(A4番出口)から徒歩2分の賃貸オフィスです。岩本町駅A4出口から100m以内の好立地。また、徒歩5分足らずで秋葉原エリアへアクセスができますので、買い物やランチのバリエーションを求める際は足を伸ばして頂くと便利でしょう。岩本町SYビルの外観はベージュのタイル張りですっきりとした印象です。各フロア25坪前後でコンパクトですが、トイレは男女別で室外に設置されています。機械警備付でエントランスは土日祝も開放しており、何かと使い勝手のよい賃貸オフィスビルです。SHIMADA秋葉原ビルは岩本町駅(A4番出口)の他に秋葉原駅(4番出口)徒歩3分、神田駅(5番出口)徒歩9分で利用も可能です。

