6階は現在募集がありません
神田第4パークビル 6階
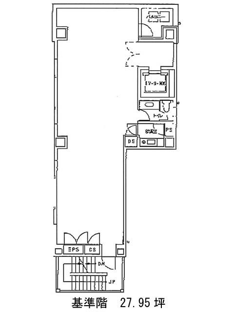
物件概要
神田第4パークビルのテナント募集中区画
現在、空室がございません。
アクセス
神田第4パークビルの物件情報
神田第4パークビル(千代田区岩本町)は小伝馬町駅(出口2)から徒歩4分の賃貸オフィスです。神田第4パークビルは小伝馬町駅(出口2)の他に岩本町駅(A5番出口)徒歩6分、新日本橋駅(8番出口)徒歩7分で利用も可能です。

