安岡ビルのテナント募集中区画
| 階数 | 面積 | 賃料(共益費含む) | 保証金 | 入居可能日 | 検討リスト | 詳細 |
|---|---|---|---|---|---|---|
| 3 | 74.00坪 | 1,058,200円/月(14,300円/坪) | 769万円 | 即 |
…新着物件
アクセス
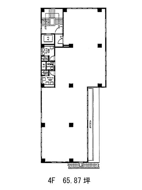
安岡ビルの物件情報
安岡ビル(千代田区岩本町)は岩本町駅(A5番出口)から徒歩4分の賃貸オフィスです。地上5階建て、外観はシンプルな白のタイル張り。これまでに15坪から74坪までの分割実績があり、少人数のワークスペースから中規模の事業拡大まで幅広いニーズに対応できます。トイレは貸室内に設置されており、占有性を高めています。(一部貸室は異なる)
周辺にはコンビニ・飲食店に加え、郵便局や銀行も徒歩圏内にあり、来客対応や日常業務も快適に行える立地です。安岡ビルは岩本町駅(A5番出口)の他に小伝馬町駅(出口2)徒歩6分、新日本橋駅(8番出口)徒歩7分で利用も可能です。

