5階は現在募集がありません
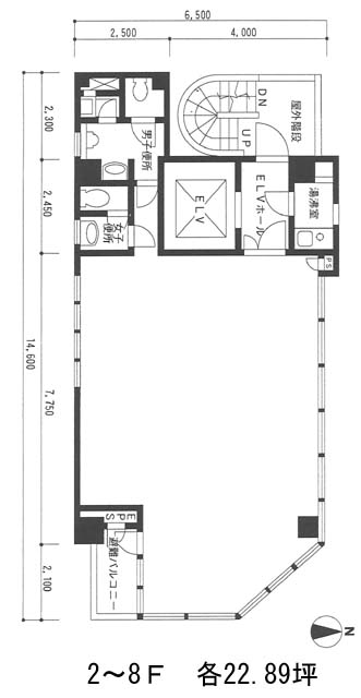
東京リアル岩本町ビル 5階
物件概要
東京リアル岩本町ビルのテナント募集中区画
現在、空室がございません。
アクセス
東京リアル岩本町ビルの物件情報
東京リアル岩本町ビル(千代田区岩本町)は岩本町駅(A5番出口)から徒歩3分の賃貸オフィスです。東京リアル岩本町ビルは岩本町駅(A5番出口)の他に秋葉原駅(4番出口)徒歩5分、小伝馬町駅(出口2)徒歩7分で利用も可能です。

