JP-BASE神田 3階
物件概要
物件番号
383-00245-30物件名
JP-BASE神田所在地
- 東京都千代田区岩本町2-3-8
- アクセスマップ
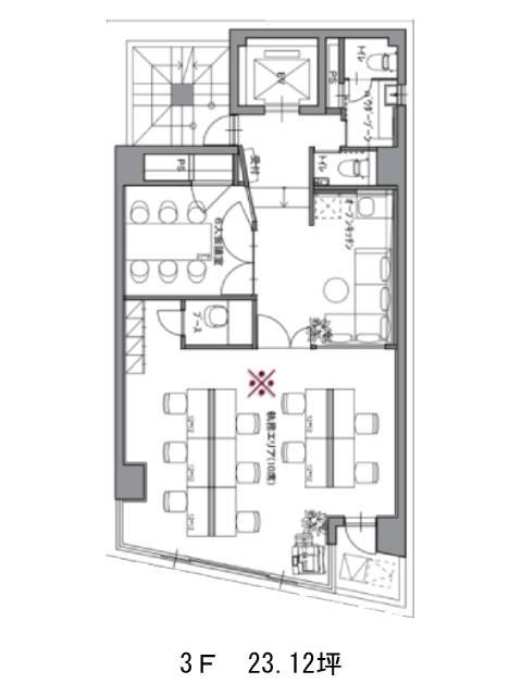
面積
23.12坪賃料(共益費含)
月額534,072円(23,101円/坪)
入居日
2025年12月保証金
1,822,133円礼金
なし更新料
新1ケ月償却費
なし竣工
1992年6月構造
RC規模
地上6階トイレ
男女別空調
個別空調エレベーター
有セキュリティ
有駐車場
無耐震
新耐震基準基準階天井高
空室延床面積
46.25坪情報更新日
2025/12/03JP-BASE神田のテナント募集中区画
| 階数 | 面積 | 賃料(共益費含む) | 保証金 | 入居可能日 | 検討リスト | 詳細 |
|---|---|---|---|---|---|---|
| 2 | 23.13坪 | 534,072円/月(23,091円/坪) | 182万円 | 2026年1月下旬 | ||
| 3 | 23.12坪 | 534,072円/月(23,101円/坪) | 182万円 | 2025年12月 |
…新着物件
アクセス
JP-BASE神田の物件情報
JP-BASE神田(千代田区岩本町)は岩本町駅(A5番出口)から徒歩3分の賃貸オフィスです。グレーの御影石がグレード感のある外観です。基準階は22.18坪のお部屋で各フロア室外にお手洗いが一つ設置されています。夜間はオートロック対応で事務所は24時間利用可能です。
周辺はオフィスエリアでビジネスホテルが点在しています。また、徒歩3分圏内に千代田岩本町郵便局があるため、事務関係の業務に便利でしょう。JP-BASE神田は岩本町駅(A5番出口)の他に小伝馬町駅(出口2)徒歩6分、秋葉原駅(4番出口)徒歩7分で利用も可能です。

