5階は現在募集がありません
1フロア募集区画あり

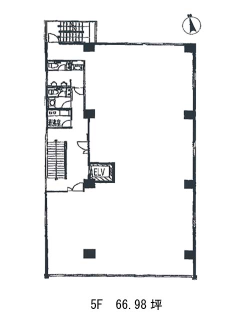
森川ビル 5階

前の写真 次の写真

物件概要

物件番号

383-00266-20

物件名

森川ビル

所在地

面積

66.98坪

賃料(共益費含)


入居日

募集終了

保証金

礼金

更新料

償却費

竣工

1965年2月

構造

SRC

規模

地上10階/地下1階

トイレ

男女別

空調

個別空調

エレベーター

セキュリティ

駐車場

耐震

耐震補強済み

基準階天井高

空室延床面積

26.03坪

最寄駅

情報更新日

2026/05/20

森川ビルのテナント募集中区画

階数 面積 賃料(共益費含む) 保証金 入居可能日 検討リスト 詳細
2 26.03坪 405,014円/月(15,559円/坪) 220万円
…新着物件

森川ビルのアクセス

森川ビルの物件情報

森川ビル(千代田区岩本町)は小伝馬町駅(出口2)から徒歩5分の賃貸オフィスです。
1964年竣工、地上8階建てのビルです。黒い壁面とガラス窓が交互に並び、すっきりとした外観デザインをしています。フロアの1箇所に共用部が集まり、使い勝手が良いでしょう。EV1基・機械警備・給湯室・非常階段2箇所・OAフロア・貸室外の男女別トイレといった設備仕様がそろいます。空調は個別空調が導入されています。事務所への出入口が複数あり、来客用と動線を分けられるでしょう。神田金物通り沿いに建ち、周辺は中層階のオフィスビルが多いエリアです。
森川ビルは小伝馬町駅(出口2)の他に岩本町駅(A5番出口)徒歩5分、新日本橋駅(8番出口)徒歩6分で利用も可能です。

近隣のエリア・駅から探す