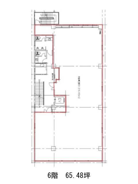
森川ビル 6階
物件概要
物件番号
383-00266-31物件名
森川ビル所在地
- 東京都千代田区岩本町2-1-16
- アクセスマップ
面積
65.48坪賃料(共益費含)
月額786,500円(12,012円/坪)
入居日
即保証金
4,290,250円礼金
なし更新料
新1ケ月償却費
1ケ月竣工
1965年2月構造
SRC規模
地上10階/地下1階トイレ
男女別空調
個別空調エレベーター
有セキュリティ
有駐車場
無耐震
耐震補強済み基準階天井高
空室延床面積
65.48坪情報更新日
2025/08/22森川ビルのテナント募集中区画
| 階数 | 面積 | 賃料(共益費含む) | 保証金 | 入居可能日 | 検討リスト | 詳細 |
|---|---|---|---|---|---|---|
| 6 | 65.48坪 | 786,500円/月(12,012円/坪) | 429万円 | 即 |
…新着物件
アクセス
森川ビルの物件情報
森川ビル(千代田区岩本町)は小伝馬町駅(出口2)から徒歩5分の賃貸オフィスです。1964年竣工、地上8階建てのビルです。黒い壁面とガラス窓が交互に並び、すっきりとした外観デザインをしています。フロアの1箇所に共用部が集まり、使い勝手が良いでしょう。EV1基・機械警備・給湯室・非常階段2箇所・OAフロア・貸室外の男女別トイレといった設備仕様がそろいます。空調は個別空調が導入されています。事務所への出入口が複数あり、来客用と動線を分けられるでしょう。神田金物通り沿いに建ち、周辺は中層階のオフィスビルが多いエリアです。森川ビルは小伝馬町駅(出口2)の他に岩本町駅(A5番出口)徒歩5分、新日本橋駅(8番出口)徒歩6分で利用も可能です。

