2階は現在募集がありません
2フロア募集区画あり

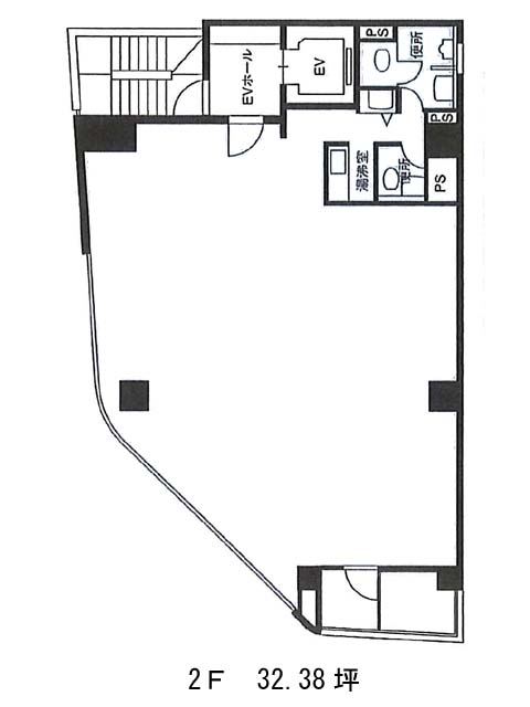
ニュー中野ビル 2階

前の写真 次の写真

物件概要

物件番号

383-00027-10

物件名

ニュー中野ビル

所在地

面積

32.38坪

賃料(共益費含)


入居日

募集終了

保証金

礼金

更新料

償却費

竣工

1988年8月

構造

SRC

規模

地上10階/地下1階

トイレ

男女別

空調

個別空調

エレベーター

セキュリティ

駐車場

耐震

新耐震基準

基準階天井高

2370-2400mm

空室延床面積

66.14坪

最寄駅

情報更新日

2025/12/25

ニュー中野ビルのテナント募集中区画

階数 面積 賃料(共益費含む) 保証金 入居可能日 検討リスト 詳細
6 33.07坪 545,646円/月(16,500円/坪) 370万円 2026年2月上旬
7 33.07坪 545,655円/月(16,500円/坪) 370万円 相談
…新着物件

アクセス

ニュー中野ビルの物件情報

ニュー中野ビル(千代田区岩本町)は新日本橋駅(8番出口)から徒歩5分の賃貸オフィスです。
ニュー中野ビルは新日本橋駅(8番出口)の他に岩本町駅(A5番出口)徒歩5分、小伝馬町駅(出口2)徒歩6分で利用も可能です。

近隣のエリア・駅から探す