PMO岩本町 2階
物件概要
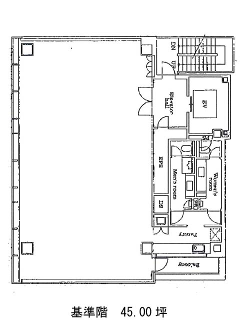
PMO岩本町のテナント募集中区画
| 階数 | 面積 | 賃料(共益費含む) | 保証金 | 入居可能日 | 検討リスト | 詳細 |
|---|---|---|---|---|---|---|
| 2 | 45.00坪 | 応相談(応相談) | 応相談 | 即 | ||
| 6 | 45.00坪 | 応相談(応相談) | 応相談 | 2026年4月上旬 |
…新着物件
アクセス
PMO岩本町の物件情報
PMO岩本町(千代田区岩本町)は岩本町駅(A4番出口)から徒歩2分の賃貸オフィスです。PMOはプレミアム・ミッドサイズ・オフィスと言われる中規模サイズでありながら大規模ビルと同等の機能性とグレードを備えた物件です。2009年竣工で黒を基調とした大型ガラスのカーテンウォールが特徴的な視認性の高いビルです。1階エントランスはPMOオリジナルのアロマの香りがしていて、落ち着く雰囲気のエントランスです。また、エレベーターホール前にはセキュリティーゲートが設けられているので、セキュリティも万全です。周辺には飲食店も多く秋葉原駅も近いのでお買い物など仕事後も楽しめることでしょう。PMO岩本町は岩本町駅(A4番出口)の他に秋葉原駅(4番出口)徒歩3分、神田駅(5番出口)徒歩9分で利用も可能です。

