4階は現在募集がありません
2フロア募集区画あり

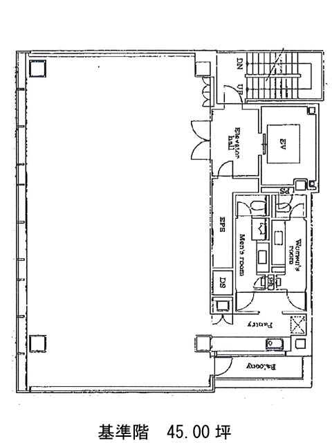
PMO岩本町 4階

前の写真 次の写真

物件概要

物件番号

383-00296-30

物件名

PMO岩本町

所在地

面積

45.00坪

賃料(共益費含)


入居日

募集終了

保証金

礼金

更新料

償却費

竣工

2009年5月

構造

S造

規模

地上8階

トイレ

男女別

空調

個別空調

エレベーター

セキュリティ

駐車場

耐震

新耐震基準

基準階天井高

2700mm

空室延床面積

90.00坪

最寄駅

情報更新日

2026/01/16

PMO岩本町のテナント募集中区画

階数 面積 賃料(共益費含む) 保証金 入居可能日 検討リスト 詳細
2 45.00坪 応相談(応相談) 応相談
6 45.00坪 応相談(応相談) 応相談 2026年4月上旬
…新着物件

アクセス

PMO岩本町の物件情報

PMO岩本町(千代田区岩本町)は岩本町駅(A4番出口)から徒歩2分の賃貸オフィスです。
PMOはプレミアム・ミッドサイズ・オフィスと言われる中規模サイズでありながら大規模ビルと同等の機能性とグレードを備えた物件です。2009年竣工で黒を基調とした大型ガラスのカーテンウォールが特徴的な視認性の高いビルです。1階エントランスはPMOオリジナルのアロマの香りがしていて、落ち着く雰囲気のエントランスです。また、エレベーターホール前にはセキュリティーゲートが設けられているので、セキュリティも万全です。周辺には飲食店も多く秋葉原駅も近いのでお買い物など仕事後も楽しめることでしょう。
PMO岩本町は岩本町駅(A4番出口)の他に秋葉原駅(4番出口)徒歩3分、神田駅(5番出口)徒歩9分で利用も可能です。

近隣のエリア・駅から探す