3階は現在募集がありません
3フロア募集区画あり
THE PORTAL IWAMOTOCHO 3階
物件概要
物件番号
383-00030-20物件名
THE PORTAL IWAMOTOCHO所在地
- 東京都千代田区岩本町2-8-8
- アクセスマップ
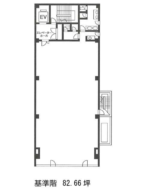
面積
82.66坪賃料(共益費含)
−入居日
募集終了保証金
−礼金
−更新料
−償却費
−竣工
1991年9月構造
SRC規模
地上9階/地下1階トイレ
男女別空調
個別空調エレベーター
有セキュリティ
有駐車場
有耐震
新耐震基準基準階天井高
3500mm空室延床面積
181.27坪情報更新日
2025/11/14THE PORTAL IWAMOTOCHOのテナント募集中区画
| 階数 | 面積 | 賃料(共益費含む) | 保証金 | 入居可能日 | 検討リスト | 詳細 |
|---|---|---|---|---|---|---|
| 1 | 50.93坪 | 1,344,552円/月(26,400円/坪) | 応相談 | 2026年1月下旬 | ||
| 7 | 69.66坪 | 1,839,024円/月(26,400円/坪) | 1,003万円 | 即 | ||
| 8 | 60.68坪 | 1,601,952円/月(26,400円/坪) | 873万円 | 2025年12月上旬 |
…新着物件
アクセス
THE PORTAL IWAMOTOCHOの物件情報
THE PORTAL IWAMOTOCHO(千代田区岩本町)は小伝馬町駅(出口2)から徒歩5分の賃貸オフィスです。2025年にエントランス・外観・貸室を含む大規模リニューアル。
エントランスは、温かみのあるアースカラーと、洗練された直線的なデザインが融合した空間へと刷新され、訪れるゲストを上質な雰囲気で迎え入れます。
貸室部分は、各フロア50~90坪の程よいボリューム感を確保し、天井オープンの開放的なデザインを採用。ナチュラルテイストの素材感と、明るく落ち着きのあるトーンが、快適なワークプレイスを演出します。
また、近年ニーズの高まるハーフセットアップオフィス仕様で、家具や什器の用意に悩まされることなく、すぐに業務をスタートすることが可能。各フロアには会議室・テレカンブース・ラウンジスペースがしっかりと設けられており、チーム間の円滑なコミュニケーションや多様な働き方にも柔軟に対応します。※詳細は都度ご確認ください
機械警備や男女別トイレなど、基本的な設備も充実しており、安心して業務に集中できるセキュリティ体制が魅力。再開発が進むエリアの中で、先進性と心地よさを兼ね備えたオフィス空間です。THE PORTAL IWAMOTOCHOは小伝馬町駅(出口2)の他に岩本町駅(A5番出口)徒歩5分、秋葉原駅(4番出口)徒歩8分で利用も可能です。

