5階は現在募集がありません
フォロ・エムビル(FORO・M) 5階
物件概要
フォロ・エムビル(FORO・M)のテナント募集中区画
現在、空室がございません。
アクセス
フォロ・エムビル(FORO・M)の物件情報
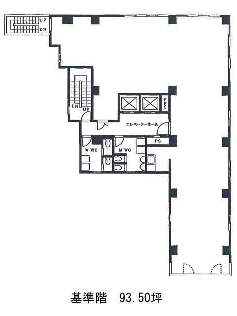
フォロ・エムビル(FORO・M)(千代田区岩本町)は小伝馬町駅(出口2)から徒歩5分の賃貸オフィスです。1990年竣工で、新耐震基準に適合した地上9階建てのビルです。重厚感のある外観が人目を引き、エントランスホールにはエレベーターは2基設置。基準階面積は約90坪。貸室はL字型で、フリーアクセス床となっているので、配線しやすいフロアです。個別空調完備、男女別トイレ設置。駐車場が併設されており、セキュリティは機械式警備を採用しています。徒歩圏内にコンビニエンスストアやカフェがございますので、利便性が高いです。フォロ・エムビル(FORO・M)は小伝馬町駅(出口2)の他に岩本町駅(A5番出口)徒歩5分、新日本橋駅(8番出口)徒歩6分で利用も可能です。

