4階 4Bは現在募集がありません
1フロア募集区画あり

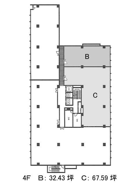
TMMビルディング 4階 4B

前の写真 次の写真

物件概要

物件番号

383-00099-70

物件名

TMMビルディング

所在地

面積

32.43坪

賃料(共益費含)


入居日

募集終了

保証金

礼金

更新料

償却費

竣工

1973年9月

構造

SRC

規模

地上9階/地下2階

トイレ

男女別

空調

個別空調

エレベーター

セキュリティ

駐車場

耐震

耐震補強済み

基準階天井高

2410mm

空室延床面積

46.48坪

最寄駅

情報更新日

2026/03/10

TMMビルディングのテナント募集中区画

階数 面積 賃料(共益費含む) 保証金 入居可能日 検討リスト 詳細
4 46.48坪 応相談(応相談) 応相談
…新着物件

TMMビルディングのアクセス

TMMビルディングの物件情報

TMMビルディング(千代田区岩本町)は小伝馬町駅(出口1)から徒歩5分の賃貸オフィスです。
当ビルは、角地に建つ白い格子状の外観が印象的なオフィスビル。築年数はあるものの、随所に“老舗ならでは”の落ち着きと丁寧さが感じられます。(耐震補強工事済み)エレベーターは乗用2基・貨物用1基を備え、朝の移動もスムーズ。室内は整形レイアウトで、柱のある区画でも家具配置の工夫で十分な使いやすさを確保できます。男女別トイレと給湯は共用部にあり、貸室をすっきり広く活用できるのもポイント。ビル内には中華レストランやガーデンも併設されており、ランチやリフレッシュにも活用できそうです。周辺にはコンビニ、飲食店、郵便局、銀行も揃っていて、働くうえでの“ちょうどよさ”が詰まった一棟です。
TMMビルディングは小伝馬町駅(出口1)の他に馬喰町駅(2番出口)徒歩5分、岩本町駅(A4番出口)徒歩6分で利用も可能です。

近隣のエリア・駅から探す