五番町片岡ビル 4階新着
物件概要
物件番号
387-00037-23物件名
五番町片岡ビル所在地
- 東京都千代田区五番町2-7
- アクセスマップ
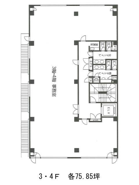
面積
75.85坪賃料(共益費含)
月額2,085,873円(27,500円/坪)
入居日
2026年6月中旬保証金
18,962,500円礼金
なし更新料
あり償却費
なし竣工
1988年2月構造
RC規模
地上4階トイレ
男女別空調
個別空調エレベーター
有セキュリティ
有駐車場
無耐震
新耐震基準基準階天井高
空室延床面積
151.70坪情報更新日
2026/04/07五番町片岡ビルのテナント募集中区画
| 階数 | 面積 | 賃料(共益費含む) | 保証金 | 入居可能日 | 検討リスト | 詳細 |
|---|---|---|---|---|---|---|
| 3 | 75.85坪 | 2,085,873円/月(27,500円/坪) | 1,896万円 | 2026年6月中旬 | ||
| 4 | 75.85坪 | 2,085,873円/月(27,500円/坪) | 1,896万円 | 2026年6月中旬 |
…新着物件
五番町片岡ビルのアクセス
五番町片岡ビルの物件情報
五番町片岡ビル(千代田区五番町)は市ヶ谷駅(4番出口)から徒歩2分の賃貸オフィスです。五番町片岡ビルは市ヶ谷駅(4番出口)の他に麹町駅(6番出口)徒歩8分、四ツ谷駅(麹町口)徒歩10分で利用も可能です。

