麹町1丁目ビルのテナント募集中区画
| 階数 | 面積 | 賃料(共益費含む) | 保証金 | 入居可能日 | 検討リスト | 詳細 |
|---|---|---|---|---|---|---|
| 5 | 154.32坪 | 応相談(応相談) | 応相談 | 即 |
…新着物件
アクセス
麹町1丁目ビルの物件情報
麹町1丁目ビル(千代田区麹町)は半蔵門駅(3b番出口)から徒歩2分の賃貸オフィスです。物件は新宿通りに面し、最寄りの半蔵門駅からも至近のため、視認性の高さが魅力のひとつです。
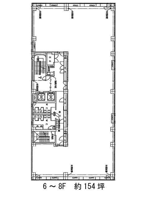
貸室はコの字型の無柱空間で、視界を遮る要素が少なく、ゾーニングや家具配置の自由度が高い設計です。OAフロア・個別空調完備で、トイレや給湯室は共用部に配置されているため、執務スペースを有効に活用できます。
天井高は2,600mm。2基のエレベーターや機械式駐車場など、日々の業務をスムーズに支える設備も充実しています。有人管理と機械警備によるセキュリティ体制も整っており、安心感と機能性のバランスに優れた一棟。
周囲は麹町一丁目らしい落ち着きのある街並みが広がり、働くうえでの安心感や集中しやすい空気感が魅力です。麹町1丁目ビルは半蔵門駅(3b番出口)の他に麹町駅(1番出口)徒歩6分、永田町駅(4番出口)徒歩11分で利用も可能です。

