麹町1丁目ビル 5階
物件概要
物件番号
388-00202-71物件名
麹町1丁目ビル所在地
- 東京都千代田区麹町1-6-2
- アクセスマップ
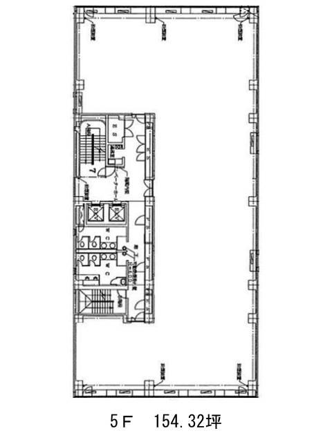
面積
154.32坪賃料(共益費含)
:応相談応相談
入居日
即保証金
応相談礼金
なし更新料
なし償却費
なし竣工
1987年6月構造
SRC規模
地上8階/地下1階トイレ
男女別空調
個別空調エレベーター
有セキュリティ
駐車場
有耐震
新耐震基準基準階天井高
2600mm空室延床面積
154.32坪情報更新日
2026/03/10麹町1丁目ビルのテナント募集中区画
| 階数 | 面積 | 賃料(共益費含む) | 保証金 | 入居可能日 | 検討リスト | 詳細 |
|---|---|---|---|---|---|---|
| 5 | 154.32坪 | 応相談(応相談) | 応相談 | 即 |
…新着物件
麹町1丁目ビルのアクセス
麹町1丁目ビルの物件情報
麹町1丁目ビル(千代田区麹町)は半蔵門駅(3b番出口)から徒歩2分の賃貸オフィスです。物件は新宿通りに面し、最寄りの半蔵門駅からも至近のため、視認性の高さが魅力のひとつです。
貸室はコの字型の無柱空間で、視界を遮る要素が少なく、ゾーニングや家具配置の自由度が高い設計です。OAフロア・個別空調完備で、トイレや給湯室は共用部に配置されているため、執務スペースを有効に活用できます。
天井高は2,600mm。2基のエレベーターや機械式駐車場など、日々の業務をスムーズに支える設備も充実しています。有人管理と機械警備によるセキュリティ体制も整っており、安心感と機能性のバランスに優れた一棟。
周囲は麹町一丁目らしい落ち着きのある街並みが広がり、働くうえでの安心感や集中しやすい空気感が魅力です。麹町1丁目ビルは半蔵門駅(3b番出口)の他に麹町駅(1番出口)徒歩6分、永田町駅(4番出口)徒歩11分で利用も可能です。

