7階は現在募集がありません
1フロア募集区画あり

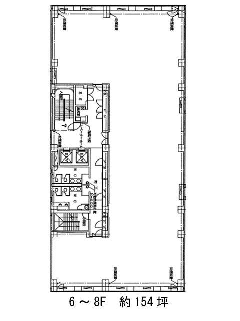
麹町1丁目ビル 7階

前の写真 次の写真

物件概要

物件番号

388-00202-60

物件名

麹町1丁目ビル

所在地

面積

154.38坪

賃料(共益費含)


入居日

募集終了

保証金

礼金

更新料

償却費

竣工

1987年6月

構造

SRC

規模

地上8階/地下1階

トイレ

男女別

空調

個別空調

エレベーター

セキュリティ

駐車場

耐震

新耐震基準

基準階天井高

2600mm

空室延床面積

154.32坪

最寄駅

情報更新日

2026/04/06

麹町1丁目ビルのテナント募集中区画

階数 面積 賃料(共益費含む) 保証金 入居可能日 検討リスト 詳細
5 154.32坪 応相談(応相談) 応相談
…新着物件

麹町1丁目ビルのアクセス

麹町1丁目ビルの物件情報

麹町1丁目ビル(千代田区麹町)は半蔵門駅(3b番出口)から徒歩2分の賃貸オフィスです。
物件は新宿通りに面し、最寄りの半蔵門駅からも至近のため、視認性の高さが魅力のひとつです。
貸室はコの字型の無柱空間で、視界を遮る要素が少なく、ゾーニングや家具配置の自由度が高い設計です。OAフロア・個別空調完備で、トイレや給湯室は共用部に配置されているため、執務スペースを有効に活用できます。
天井高は2,600mm。2基のエレベーターや機械式駐車場など、日々の業務をスムーズに支える設備も充実しています。有人管理と機械警備によるセキュリティ体制も整っており、安心感と機能性のバランスに優れた一棟。
周囲は麹町一丁目らしい落ち着きのある街並みが広がり、働くうえでの安心感や集中しやすい空気感が魅力です。
麹町1丁目ビルは半蔵門駅(3b番出口)の他に麹町駅(1番出口)徒歩6分、永田町駅(4番出口)徒歩11分で利用も可能です。

近隣のエリア・駅から探す