ACN麹町ビル 12階
物件概要
物件番号
388-00308-10物件名
ACN麹町ビル所在地
- 東京都千代田区麹町4-4-4
- アクセスマップ
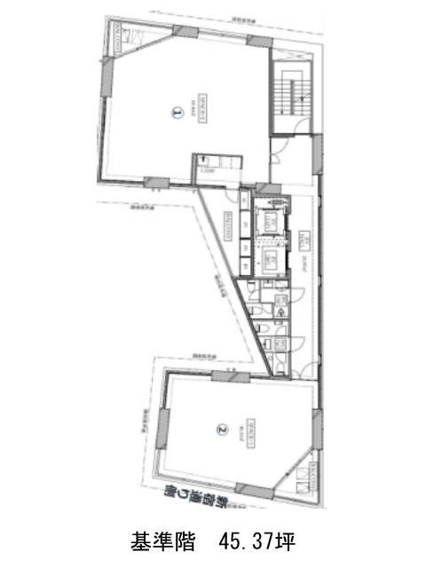
面積
45.27坪賃料(共益費含)
:応相談応相談
入居日
2026年10月上旬保証金
応相談礼金
なし更新料
新1ケ月償却費
1ケ月竣工
2022年9月構造
RC規模
地上12階/地下1階トイレ
男女別空調
個別空調エレベーター
有セキュリティ
有駐車場
無耐震
新耐震基準基準階天井高
3000mm空室延床面積
90.54坪情報更新日
2026/03/12ACN麹町ビルのテナント募集中区画
| 階数 | 面積 | 賃料(共益費含む) | 保証金 | 入居可能日 | 検討リスト | 詳細 |
|---|---|---|---|---|---|---|
| 8 | 45.27坪 | 応相談(応相談) | 応相談 | 2026年7月上旬 | ||
| 12 | 45.27坪 | 応相談(応相談) | 応相談 | 2026年10月上旬 |
…新着物件
ACN麹町ビルのアクセス
ACN麹町ビルの物件情報
ACN麹町ビル(千代田区麹町)は麹町駅(4番出口)から徒歩3分の賃貸オフィスです。2022年竣工、地上12階地下1階建てRC造のビルです。フロアの中央に共用部がまとまり、使い勝手が良いでしょう。基準階面積は45.37坪です。支柱の出っ張りが無い室内は、すっきりとしておりオフィス家具の配置がしやすいでしょう。設備仕様として、EV・貸室外の男女別トイレ・個別空調・OAフロアがあります。1棟貸し・複数フロアでのレンタルが相談可能です。天井高3000㎜で、開放的な室内になるでしょう。ACN麹町ビルは麹町駅(4番出口)の他に四ツ谷駅(麹町口)徒歩6分、半蔵門駅(2番出口)徒歩8分で利用も可能です。

