ACN麹町ビルのテナント募集中区画
| 階数 | 面積 | 賃料(共益費含む) | 保証金 | 入居可能日 | 検討リスト | 詳細 |
|---|---|---|---|---|---|---|
| 8 | 45.27坪 | 応相談(応相談) | 応相談 | 2026年7月上旬 | ||
| 12 | 45.27坪 | 応相談(応相談) | 応相談 | 2026年10月上旬 |
…新着物件
ACN麹町ビルのアクセス
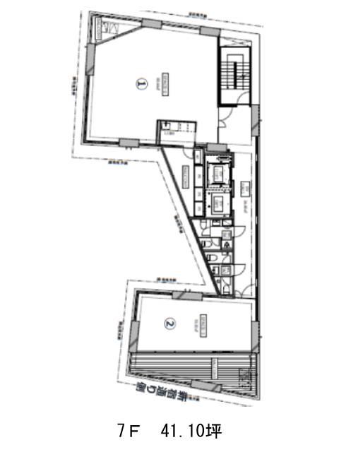
ACN麹町ビルの物件情報
ACN麹町ビル(千代田区麹町)は麹町駅(4番出口)から徒歩3分の賃貸オフィスです。2022年竣工、地上12階地下1階建てRC造のビルです。フロアの中央に共用部がまとまり、使い勝手が良いでしょう。基準階面積は45.37坪です。支柱の出っ張りが無い室内は、すっきりとしておりオフィス家具の配置がしやすいでしょう。設備仕様として、EV・貸室外の男女別トイレ・個別空調・OAフロアがあります。1棟貸し・複数フロアでのレンタルが相談可能です。天井高3000㎜で、開放的な室内になるでしょう。ACN麹町ビルは麹町駅(4番出口)の他に四ツ谷駅(麹町口)徒歩6分、半蔵門駅(2番出口)徒歩8分で利用も可能です。

