11階は現在募集がありません
2フロア募集区画あり

ACN麹町ビル 11階

前の写真 次の写真

物件概要

物件番号

388-00308-9

物件名

ACN麹町ビル

所在地

面積

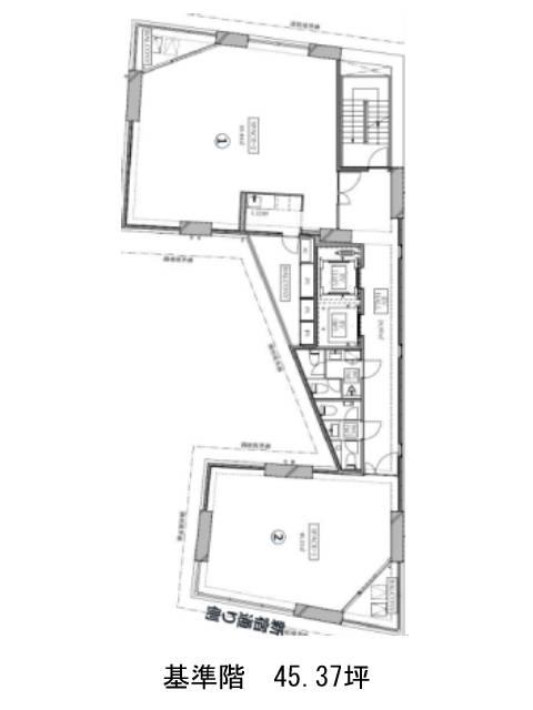
45.37坪

賃料(共益費含)


入居日

募集終了

保証金

礼金

更新料

償却費

竣工

2022年9月

構造

RC

規模

地上12階/地下1階

トイレ

男女別

空調

個別空調

エレベーター

セキュリティ

駐車場

耐震

新耐震基準

基準階天井高

3000mm

空室延床面積

90.64坪

最寄駅

情報更新日

2026/04/24

ACN麹町ビルのテナント募集中区画

階数 面積 賃料(共益費含む) 保証金 入居可能日 検討リスト 詳細
3 45.37坪 応相談(応相談) 応相談 2026年11月上旬
12 45.27坪 応相談(応相談) 応相談 2026年10月上旬
…新着物件

ACN麹町ビルのアクセス

ACN麹町ビルの物件情報

ACN麹町ビル(千代田区麹町)は麹町駅(4番出口)から徒歩3分の賃貸オフィスです。
2022年竣工、地上12階地下1階建てRC造のビルです。フロアの中央に共用部がまとまり、使い勝手が良いでしょう。基準階面積は45.37坪です。支柱の出っ張りが無い室内は、すっきりとしておりオフィス家具の配置がしやすいでしょう。設備仕様として、EV・貸室外の男女別トイレ・個別空調・OAフロアがあります。1棟貸し・複数フロアでのレンタルが相談可能です。天井高3000㎜で、開放的な室内になるでしょう。
ACN麹町ビルは麹町駅(4番出口)の他に四ツ谷駅(麹町口)徒歩6分、半蔵門駅(2番出口)徒歩8分で利用も可能です。

近隣のエリア・駅から探す