CREAL SQUARE半蔵門 8階
物件概要
CREAL SQUARE半蔵門のテナント募集中区画
…新着物件
CREAL SQUARE半蔵門のアクセス
CREAL SQUARE半蔵門の物件情報
CREAL SQUARE半蔵門(千代田区麹町)は半蔵門駅(3b番出口)から徒歩3分の賃貸オフィスです。外観はブラックブラウンを基調とし、洗練された佇まいと重厚感のあるデザイン。
1階エントランスホールは、無機質なブラックタイルと明るい床材のコントラストが映える、ハードでモダンな空間。オフィスビルとしてはやや珍しく、訪れる人に強い印象を与えるスタイルに仕上がっています。
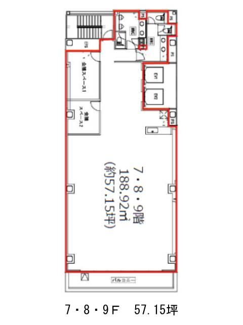
基準階は50坪台の整形フロアで、区画によっては会議室が設置されていたり、レイアウトに少し違いがあるなど、ニーズに応じた選択が可能。募集タイミングによって初期設備が異なるため、内覧時の確認をおすすめします。
各区画にはOAフロア、個別空調、男女別トイレ、機械警備を完備しており、快適かつ安心して働ける環境が整っています。
また、都心にありながら皇居が徒歩圏にあり、自然も感じられるロケーション。落ち着いた環境とセキュリティの両立を求める企業様におすすめの物件です。CREAL SQUARE半蔵門は半蔵門駅(3b番出口)の他に麹町駅(1番出口)徒歩7分、永田町駅(4番出口)徒歩11分で利用も可能です。

