JFNセンタービルのテナント募集中区画
| 階数 | 面積 | 賃料(共益費含む) | 保証金 | 入居可能日 | 検討リスト | 詳細 |
|---|---|---|---|---|---|---|
| 7 | 60.84坪 | 2,007,720円/月(33,000円/坪) | 1,095万円 | 相談 | ||
| 7 | 45.93坪 | 1,515,690円/月(33,000円/坪) | 826万円 | 相談 | ||
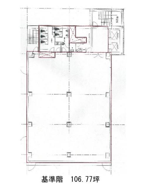
| 8 | 106.77坪 | 2,701,281円/月(25,300円/坪) | 2,946万円 | 即 |
…新着物件
JFNセンタービルのアクセス
JFNセンタービルの物件情報
JFNセンタービル(千代田区麹町)は半蔵門駅(4番出口)から徒歩1分の賃貸オフィスです。1996年竣工、地上8階建ての当物件は半蔵門駅から至近、利便性の高い立地にありながら、周囲は落ち着いた雰囲気が漂います。
外観はメタリックグレー調ですっきりとした印象。
貸室は長方形で、室内に柱がありますが、その分ゾーン分けや動線計画に活かせる構造。会議室やリフレッシュエリアの設計に工夫を凝らすことで、むしろオフィスにメリハリを与えるレイアウトも可能です。トイレ・給湯室は室外にあり、執務スペースを効率よく活用できる点も嬉しいポイント。OAフロア・個別空調・24時間利用対応の機械警備といった基本設備も整っており、2基のエレベーターや機械式駐車場も備えられているため、機能面も安心です。JFNセンタービルは半蔵門駅(4番出口)の他に麹町駅(3番出口)徒歩6分、永田町駅(4番出口)徒歩11分で利用も可能です。

