一ノ瀬ビル 2階
物件概要
物件番号
388-00051-20物件名
一ノ瀬ビル所在地
- 東京都千代田区麹町3-5
- アクセスマップ
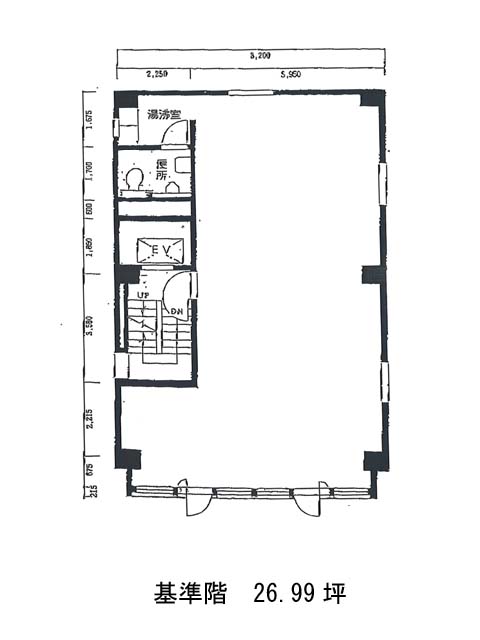
面積
26.99坪賃料(共益費含)
月額385,957円(14,300円/坪)
入居日
相談保証金
2,105,220円礼金
なし更新料
なし償却費
なし竣工
1974年11月構造
RC規模
地上6階トイレ
男女共用空調
個別空調エレベーター
有セキュリティ
駐車場
無耐震
旧耐震基準基準階天井高
空室延床面積
26.99坪情報更新日
2026/02/13一ノ瀬ビルのテナント募集中区画
| 階数 | 面積 | 賃料(共益費含む) | 保証金 | 入居可能日 | 検討リスト | 詳細 |
|---|---|---|---|---|---|---|
| 2 | 26.99坪 | 385,957円/月(14,300円/坪) | 210万円 | 相談 |
…新着物件
一ノ瀬ビルのアクセス
一ノ瀬ビルの物件情報
一ノ瀬ビル(千代田区麹町)は麹町駅(1番出口)から徒歩3分の賃貸オフィスです。白とグレーの吹付けでシンプルな外観が堅実な印象を与えます。RC造でしっかりとした佇まいのオフィスビル。基準階は26.99坪で、お手洗いと湯沸室は室内に設置されています。
一ノ瀬ビルへは麹町駅1番出入り口の利用が便利です。その他に半蔵門駅へも徒歩4分でアクセスが可能な立地です。ビル周辺はカフェやリーズナブルな飲食店、コンビニ、銀行などがあり、利便性に優れたエリアと言えます。一ノ瀬ビルは麹町駅(1番出口)の他に半蔵門駅(1番出口)徒歩4分、永田町駅(9b番出口)徒歩6分で利用も可能です。

