一ノ瀬ビルのテナント募集中区画
| 階数 | 面積 | 賃料(共益費含む) | 保証金 | 入居可能日 | 検討リスト | 詳細 |
|---|---|---|---|---|---|---|
| 3 | 26.99坪 | 326,579円/月(12,100円/坪) | 178万円 | 相談 |
…新着物件
アクセス
一ノ瀬ビルの物件情報
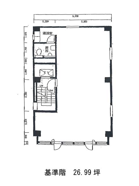
一ノ瀬ビル(千代田区麹町)は麹町駅(1番出口)から徒歩3分の賃貸オフィスです。白とグレーの吹付けでシンプルな外観が堅実な印象を与えます。RC造でしっかりとした佇まいのオフィスビル。基準階は26.99坪で、お手洗いと湯沸室は室内に設置されています。
一ノ瀬ビルへは麹町駅1番出入り口の利用が便利です。その他に半蔵門駅へも徒歩4分でアクセスが可能な立地です。ビル周辺はカフェやリーズナブルな飲食店、コンビニ、銀行などがあり、利便性に優れたエリアと言えます。一ノ瀬ビルは麹町駅(1番出口)の他に半蔵門駅(1番出口)徒歩4分、永田町駅(9b番出口)徒歩6分で利用も可能です。

