5階は現在募集がありません
1フロア募集区画あり

一ノ瀬ビル 5階

前の写真 次の写真

物件概要

物件番号

388-00051-50

物件名

一ノ瀬ビル

所在地

面積

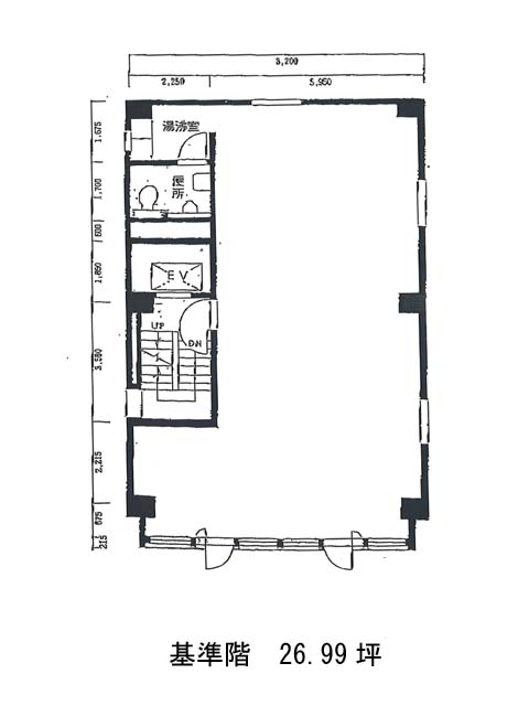
26.99坪

賃料(共益費含)


入居日

募集終了

保証金

礼金

更新料

償却費

竣工

1974年11月

構造

RC

規模

地上6階

トイレ

男女共用

空調

個別空調

エレベーター

セキュリティ

駐車場

耐震

旧耐震基準

基準階天井高

空室延床面積

26.99坪

最寄駅

情報更新日

2026/04/16

一ノ瀬ビルのテナント募集中区画

階数 面積 賃料(共益費含む) 保証金 入居可能日 検討リスト 詳細
2 26.99坪 385,957円/月(14,300円/坪) 210万円 相談
…新着物件

一ノ瀬ビルのアクセス

一ノ瀬ビルの物件情報

一ノ瀬ビル(千代田区麹町)は麹町駅(1番出口)から徒歩3分の賃貸オフィスです。
白とグレーの吹付けでシンプルな外観が堅実な印象を与えます。RC造でしっかりとした佇まいのオフィスビル。基準階は26.99坪で、お手洗いと湯沸室は室内に設置されています。
一ノ瀬ビルへは麹町駅1番出入り口の利用が便利です。その他に半蔵門駅へも徒歩4分でアクセスが可能な立地です。ビル周辺はカフェやリーズナブルな飲食店、コンビニ、銀行などがあり、利便性に優れたエリアと言えます。
一ノ瀬ビルは麹町駅(1番出口)の他に半蔵門駅(1番出口)徒歩4分、永田町駅(9b番出口)徒歩6分で利用も可能です。

近隣のエリア・駅から探す