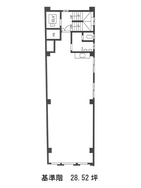
麹町長尾ビルのテナント募集中区画
| 階数 | 面積 | 賃料(共益費含む) | 保証金 | 入居可能日 | 検討リスト | 詳細 |
|---|---|---|---|---|---|---|
| 4 | 28.52坪 | 517,638円/月(18,150円/坪) | 470万円 | 相談 | ||
| 5 | 28.52坪 | 517,638円/月(18,150円/坪) | 470万円 | 即 |
…新着物件
アクセス
麹町長尾ビルの物件情報
麹町長尾ビル(千代田区麹町)は四ツ谷駅(麹町口)から徒歩2分の賃貸オフィスです。麹町長尾ビルは四ツ谷駅(麹町口)の他に麹町駅(5番出口)徒歩6分、市ヶ谷駅(3番出口)徒歩11分で利用も可能です。

