麹町長尾ビル 4階
物件概要
物件番号
388-00053-20物件名
麹町長尾ビル所在地
- 東京都千代田区麹町6-6-1
- アクセスマップ
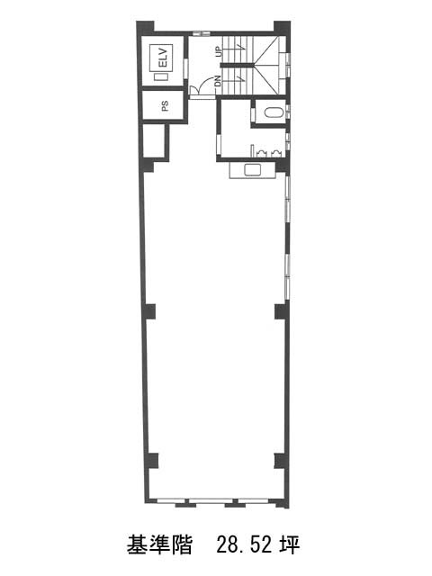
面積
28.52坪賃料(共益費含)
月額627,440円(22,000円/坪)
入居日
即保証金
5,704,000円礼金
なし更新料
新1ケ月償却費
2ケ月竣工
1975年1月構造
SRC規模
地上8階/地下1階トイレ
男女別空調
個別空調エレベーター
有セキュリティ
駐車場
無耐震
旧耐震基準基準階天井高
空室延床面積
57.04坪情報更新日
2026/02/04麹町長尾ビルのテナント募集中区画
| 階数 | 面積 | 賃料(共益費含む) | 保証金 | 入居可能日 | 検討リスト | 詳細 |
|---|---|---|---|---|---|---|
| 4 | 28.52坪 | 627,440円/月(22,000円/坪) | 570万円 | 即 | ||
| 5 | 28.52坪 | 517,638円/月(18,150円/坪) | 470万円 | 即 |
…新着物件
麹町長尾ビルのアクセス
麹町長尾ビルの物件情報
麹町長尾ビル(千代田区麹町)は四ツ谷駅(麹町口)から徒歩2分の賃貸オフィスです。麹町長尾ビルは四ツ谷駅(麹町口)の他に麹町駅(5番出口)徒歩6分、市ヶ谷駅(3番出口)徒歩11分で利用も可能です。

