6階は現在募集がありません
2フロア募集区画あり

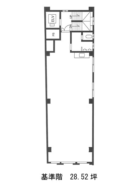
麹町長尾ビル 6階

前の写真 次の写真

物件概要

物件番号

388-00053-30

物件名

麹町長尾ビル

所在地

面積

28.52坪

賃料(共益費含)


入居日

募集終了

保証金

礼金

更新料

償却費

竣工

1975年1月

構造

SRC

規模

地上8階/地下1階

トイレ

男女共用

空調

個別空調

エレベーター

セキュリティ

駐車場

耐震

旧耐震基準

基準階天井高

空室延床面積

57.04坪

最寄駅

情報更新日

2026/02/04

麹町長尾ビルのテナント募集中区画

階数 面積 賃料(共益費含む) 保証金 入居可能日 検討リスト 詳細
4 28.52坪 627,440円/月(22,000円/坪) 570万円
5 28.52坪 517,638円/月(18,150円/坪) 470万円
…新着物件

麹町長尾ビルのアクセス

麹町長尾ビルの物件情報

麹町長尾ビル(千代田区麹町)は四ツ谷駅(麹町口)から徒歩2分の賃貸オフィスです。
麹町長尾ビルは四ツ谷駅(麹町口)の他に麹町駅(5番出口)徒歩6分、市ヶ谷駅(3番出口)徒歩11分で利用も可能です。

近隣のエリア・駅から探す