K-WINGビルのテナント募集中区画
| 階数 | 面積 | 賃料(共益費含む) | 保証金 | 入居可能日 | 検討リスト | 詳細 |
|---|---|---|---|---|---|---|
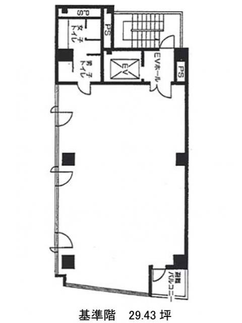
| 9 | 29.43坪 | 応相談(応相談) | 応相談 | 即 |
…新着物件
K-WINGビルのアクセス
K-WINGビルの物件情報
K-WINGビル(千代田区麹町)は麹町駅(4番出口)から徒歩3分の賃貸オフィスです。K-WINGビルは麹町駅(4番出口)の他に四ツ谷駅(麹町口)徒歩6分、半蔵門駅(2番出口)徒歩8分で利用も可能です。

