5階は現在募集がありません
1フロア募集区画あり

K-WINGビル 5階

前の写真 次の写真

物件概要

物件番号

388-00006-50

物件名

K-WINGビル

所在地

面積

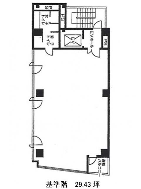
29.43坪

賃料(共益費含)


入居日

募集終了

保証金

礼金

更新料

償却費

竣工

1991年10月

構造

S造

規模

地上11階

トイレ

男女別

空調

個別空調

エレベーター

セキュリティ

駐車場

耐震

新耐震基準

基準階天井高

2390mm

空室延床面積

29.43坪

最寄駅

情報更新日

2026/03/03

K-WINGビルのテナント募集中区画

階数 面積 賃料(共益費含む) 保証金 入居可能日 検討リスト 詳細
9 29.43坪 応相談(応相談) 応相談
…新着物件

K-WINGビルのアクセス

K-WINGビルの物件情報

K-WINGビル(千代田区麹町)は麹町駅(4番出口)から徒歩3分の賃貸オフィスです。
K-WINGビルは麹町駅(4番出口)の他に四ツ谷駅(麹町口)徒歩6分、半蔵門駅(2番出口)徒歩8分で利用も可能です。

近隣のエリア・駅から探す