2階は現在募集がありません
1フロア募集区画あり

神田高木ビル 2階

前の写真 次の写真

物件概要

物件番号

394-00097-30

物件名

神田高木ビル

所在地

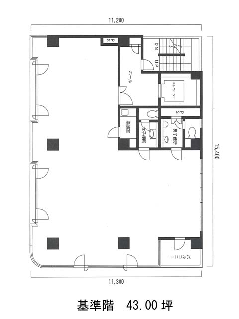
面積

43.00坪

賃料(共益費含)


入居日

募集終了

保証金

礼金

更新料

償却費

竣工

1988年11月

構造

SRC

規模

地上7階/地下1階

トイレ

不明

空調

個別空調

エレベーター

セキュリティ

駐車場

耐震

新耐震基準

基準階天井高

空室延床面積

43.05坪

最寄駅

情報更新日

2026/03/18

神田高木ビルのテナント募集中区画

階数 面積 賃料(共益費含む) 保証金 入居可能日 検討リスト 詳細
3 43.05坪 1,089,163円/月(25,300円/坪) 594万円
…新着物件

神田高木ビルのアクセス

神田高木ビルの物件情報

神田高木ビル(千代田区神田錦町)は大手町駅(C2b番出口)から徒歩5分の賃貸オフィスです。
グレーを基調とした外観が落ち着いた印象のオフィスビル。角地に位置しており、視認性も良好です。
基準階は約43坪と、ワンフロアを自社利用しやすいサイズ感。区画によってやや仕様が異なる点には留意が必要ですが、その分、用途やレイアウトの柔軟性が広がります。
最寄り駅だけでなく、複数駅が徒歩圏内でアクセス可能な立地にあり、交通利便性も申し分ありません。さらに、周囲にはコンビニなどの利便施設も揃っており、日々の業務における快適性を高めてくれる環境です。
神田高木ビルは大手町駅(C2b番出口)の他に小川町駅(B7番出口)徒歩6分、新御茶ノ水駅(B7番出口)徒歩6分で利用も可能です。

近隣のエリア・駅から探す