神田高木ビル 3階
物件概要
物件番号
394-00097-40物件名
神田高木ビル所在地
- 東京都千代田区神田錦町1-17-1
- アクセスマップ
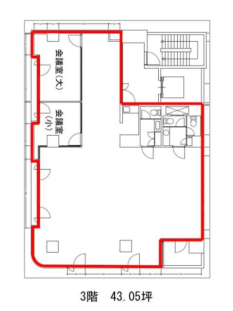
面積
43.05坪賃料(共益費含)
月額1,089,163円(25,300円/坪)
入居日
即保証金
5,940,900円礼金
なし更新料
なし償却費
なし竣工
1988年11月構造
SRC規模
地上7階/地下1階トイレ
男女別空調
個別空調エレベーター
有セキュリティ
駐車場
無耐震
新耐震基準基準階天井高
空室延床面積
43.05坪情報更新日
2026/03/18神田高木ビルのテナント募集中区画
| 階数 | 面積 | 賃料(共益費含む) | 保証金 | 入居可能日 | 検討リスト | 詳細 |
|---|---|---|---|---|---|---|
| 3 | 43.05坪 | 1,089,163円/月(25,300円/坪) | 594万円 | 即 |
…新着物件
神田高木ビルのアクセス
神田高木ビルの物件情報
神田高木ビル(千代田区神田錦町)は大手町駅(C2b番出口)から徒歩5分の賃貸オフィスです。グレーを基調とした外観が落ち着いた印象のオフィスビル。角地に位置しており、視認性も良好です。
基準階は約43坪と、ワンフロアを自社利用しやすいサイズ感。区画によってやや仕様が異なる点には留意が必要ですが、その分、用途やレイアウトの柔軟性が広がります。
最寄り駅だけでなく、複数駅が徒歩圏内でアクセス可能な立地にあり、交通利便性も申し分ありません。さらに、周囲にはコンビニなどの利便施設も揃っており、日々の業務における快適性を高めてくれる環境です。神田高木ビルは大手町駅(C2b番出口)の他に小川町駅(B7番出口)徒歩6分、新御茶ノ水駅(B7番出口)徒歩6分で利用も可能です。

