神田高木ビルのテナント募集中区画
| 階数 | 面積 | 賃料(共益費含む) | 保証金 | 入居可能日 | 検討リスト | 詳細 |
|---|---|---|---|---|---|---|
| 3 | 43.05坪 | 1,089,163円/月(25,300円/坪) | 594万円 | 即 |
…新着物件
神田高木ビルのアクセス
神田高木ビルの物件情報
神田高木ビル(千代田区神田錦町)は大手町駅(C2b番出口)から徒歩5分の賃貸オフィスです。グレーを基調とした外観が落ち着いた印象のオフィスビル。角地に位置しており、視認性も良好です。
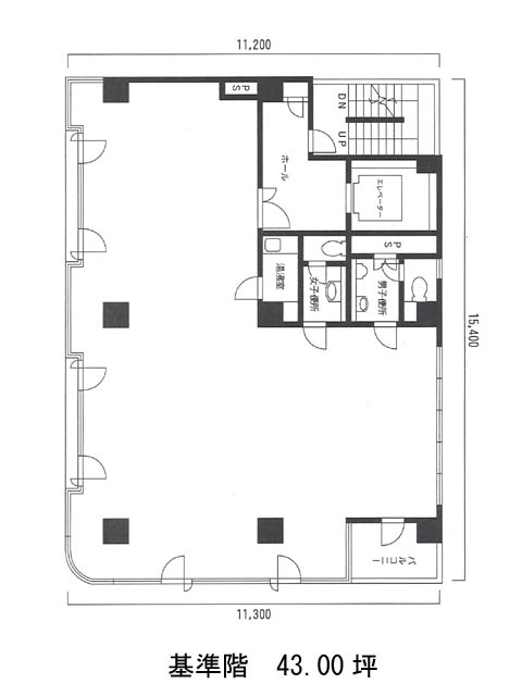
基準階は約43坪と、ワンフロアを自社利用しやすいサイズ感。区画によってやや仕様が異なる点には留意が必要ですが、その分、用途やレイアウトの柔軟性が広がります。
最寄り駅だけでなく、複数駅が徒歩圏内でアクセス可能な立地にあり、交通利便性も申し分ありません。さらに、周囲にはコンビニなどの利便施設も揃っており、日々の業務における快適性を高めてくれる環境です。神田高木ビルは大手町駅(C2b番出口)の他に小川町駅(B7番出口)徒歩6分、新御茶ノ水駅(B7番出口)徒歩6分で利用も可能です。

