グランファースト神田紺屋町 3階
物件概要
物件番号
395-00025-30物件名
グランファースト神田紺屋町所在地
- 東京都千代田区神田紺屋町15
- アクセスマップ
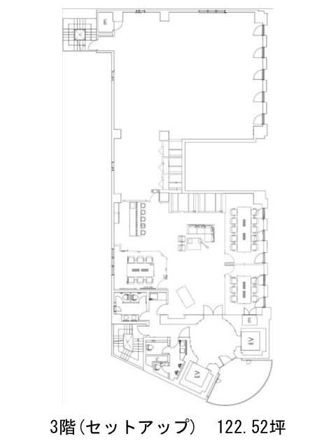
面積
122.52坪賃料(共益費含)
:応相談応相談
入居日
2026年9月上旬保証金
応相談礼金
なし更新料
なし償却費
なし竣工
1993年4月構造
SRC規模
地上10階/地下1階トイレ
男女別空調
個別空調エレベーター
有セキュリティ
有駐車場
有耐震
新耐震基準基準階天井高
2600mm空室延床面積
262.52坪情報更新日
2026/03/06グランファースト神田紺屋町のテナント募集中区画
| 階数 | 面積 | 賃料(共益費含む) | 保証金 | 入居可能日 | 検討リスト | 詳細 |
|---|---|---|---|---|---|---|
| 1 | 23.27坪 | 応相談(応相談) | 応相談 | 2026年6月上旬 | ||
| 3 | 122.52坪 | 応相談(応相談) | 応相談 | 2026年9月上旬 | ||
| 6 | 116.73坪 | 応相談(応相談) | 応相談 | 2026年9月上旬 |
…新着物件
グランファースト神田紺屋町のアクセス
グランファースト神田紺屋町の物件情報
グランファースト神田紺屋町(千代田区神田紺屋町)は岩本町駅(A5番出口)から徒歩5分の賃貸オフィスです。1993年竣工で地上10階建てのビルです。フリーアクセス床となっているので、配線しやすいフロアです。耐震は、新耐震基準に適合しています。トイレは男女別の設置となっています。セットアップオフィスとなっているため、オフィスの移転をスピーディーに行うことが可能です。フロア内は無柱空間でレイアウトを組みやすいでしょう。ロッカースペースや、リフレッシュスペースが用意されていて、従業員の利便性を高めております。グランファースト神田紺屋町は岩本町駅(A5番出口)の他に神田駅(東口)徒歩5分、新日本橋駅(8番出口)徒歩5分で利用も可能です。

