1階は現在募集がありません
2フロア募集区画あり

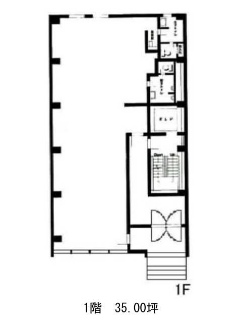
荒木ビル 1階

前の写真 次の写真

物件概要

物件番号

398-00037-10

物件名

荒木ビル

所在地

面積

35.00坪

賃料(共益費含)


入居日

募集終了

保証金

礼金

更新料

償却費

竣工

1971年6月

構造

SRC

規模

地上9階/地下1階

トイレ

男女別

空調

個別空調

エレベーター

セキュリティ

駐車場

耐震

旧耐震基準

基準階天井高

2350mm

空室延床面積

87.00坪

最寄駅

情報更新日

2025/11/05

荒木ビルのテナント募集中区画

階数 面積 賃料(共益費含む) 保証金 入居可能日 検討リスト 詳細
2 43.50坪 622,050円/月(14,300円/坪) 417万円 2026年2月上旬
5 43.50坪 574,200円/月(13,200円/坪) 382万円
…新着物件

アクセス

荒木ビルの物件情報

荒木ビル(千代田区神田司町)は小川町駅(A2番出口)から徒歩3分の賃貸オフィスです。
外堀通りに面したビルです。1階のエントランスまで階段を少し上がるようになっていて、最下が駐車スペースになっています。普通のビルでいうところの1階部分に車が停められるので、道路までスムーズに出ることが出来ます。エントランスは白で統一されており、ピンクのエレベーターが印象的です。間取りは長方形に近く男女別のトイレと給湯室が室内にあります。周辺は多くのオフィスビルが集まるビジネス街ですが、飲食店も沢山あるので気軽に食事が出来ます。銀行、郵便局なども近くにあるので非常に便利な環境です。
荒木ビルは小川町駅(A2番出口)の他に淡路町駅(A2番出口)徒歩3分、新御茶ノ水駅(B6番出口)徒歩4分で利用も可能です。

近隣のエリア・駅から探す