荒木ビル 2階
物件概要
物件番号
398-00037-20物件名
荒木ビル所在地
- 東京都千代田区神田司町2-6-1
- アクセスマップ
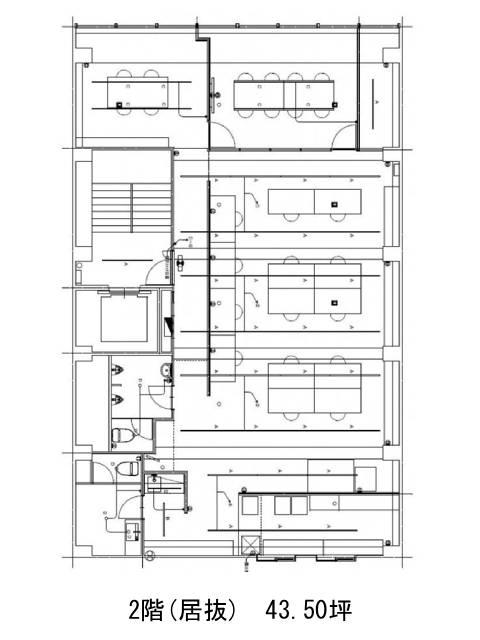
面積
43.50坪賃料(共益費含)
月額622,050円(14,300円/坪)
入居日
2026年2月上旬保証金
4,176,000円礼金
なし更新料
新1ケ月償却費
2ケ月竣工
1971年6月構造
SRC規模
地上9階/地下1階トイレ
男女別空調
個別空調エレベーター
有セキュリティ
駐車場
有耐震
旧耐震基準基準階天井高
2350mm空室延床面積
87.00坪情報更新日
2025/11/05荒木ビルのテナント募集中区画
| 階数 | 面積 | 賃料(共益費含む) | 保証金 | 入居可能日 | 検討リスト | 詳細 |
|---|---|---|---|---|---|---|
| 2 | 43.50坪 | 622,050円/月(14,300円/坪) | 417万円 | 2026年2月上旬 | ||
| 5 | 43.50坪 | 574,200円/月(13,200円/坪) | 382万円 | 即 |
…新着物件
アクセス
荒木ビルの物件情報
荒木ビル(千代田区神田司町)は小川町駅(A2番出口)から徒歩3分の賃貸オフィスです。外堀通りに面したビルです。1階のエントランスまで階段を少し上がるようになっていて、最下が駐車スペースになっています。普通のビルでいうところの1階部分に車が停められるので、道路までスムーズに出ることが出来ます。エントランスは白で統一されており、ピンクのエレベーターが印象的です。間取りは長方形に近く男女別のトイレと給湯室が室内にあります。周辺は多くのオフィスビルが集まるビジネス街ですが、飲食店も沢山あるので気軽に食事が出来ます。銀行、郵便局なども近くにあるので非常に便利な環境です。荒木ビルは小川町駅(A2番出口)の他に淡路町駅(A2番出口)徒歩3分、新御茶ノ水駅(B6番出口)徒歩4分で利用も可能です。

