サンブリヂ小川町ビル 2階新着
物件概要
物件番号
400-00002-30物件名
サンブリヂ小川町ビル所在地
- 東京都千代田区神田小川町2-2
- アクセスマップ
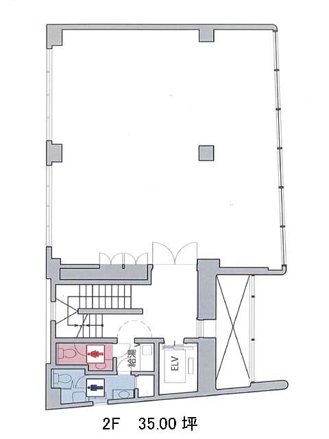
面積
35.00坪賃料(共益費含)
月額693,000円(19,800円/坪)
入居日
即保証金
5,040,000円礼金
なし更新料
なし償却費
なし竣工
1962年8月構造
RC規模
地上6階/地下1階トイレ
男女別空調
個別空調エレベーター
有セキュリティ
有駐車場
無耐震
耐震補強済み基準階天井高
空室延床面積
76.00坪情報更新日
2026/03/31サンブリヂ小川町ビルのテナント募集中区画
| 階数 | 面積 | 賃料(共益費含む) | 保証金 | 入居可能日 | 検討リスト | 詳細 |
|---|---|---|---|---|---|---|
| 2 | 35.00坪 | 693,000円/月(19,800円/坪) | 504万円 | 即 | ||
| 3 | 41.00坪 | 811,800円/月(19,800円/坪) | 590万円 | 即 |
…新着物件
サンブリヂ小川町ビルのアクセス
サンブリヂ小川町ビルの物件情報
サンブリヂ小川町ビル(千代田区神田小川町)は新御茶ノ水駅(B5番出口)から徒歩1分の賃貸オフィスです。1962年竣工、地上6階地下1階建てRC造のビルです。耐震補強工事が実施されています。ミラーガラス貼りの外壁で、すっきりとした外観をしています。1階にスポーツショップが入り、ご案内時の目印としてわかりやすいでしょう。基準階面積は41.00坪。中規模の事務所をお探しの会社におすすめです。EV1基・機械警備・個別空調・OAフロア・貸室外の男女別トイレといった設備仕様をしています。周辺にビジネスパーソン向けの飲食店が充実しています。サンブリヂ小川町ビルは新御茶ノ水駅(B5番出口)の他に小川町駅(B5番出口)徒歩1分、淡路町駅(A7番出口)徒歩3分で利用も可能です。

