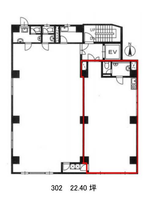
3階 302は現在募集がありません
長谷川ビル 3階 302
物件概要
長谷川ビルのテナント募集中区画
現在、空室がございません。
アクセス
長谷川ビルの物件情報
長谷川ビル(千代田区神田松永町)は秋葉原駅(A3番出口)から徒歩2分の賃貸オフィスです。長谷川ビルは秋葉原駅(A3番出口)の他に岩本町駅(A3番出口)徒歩7分、末広町駅(1番出口)徒歩8分で利用も可能です。

