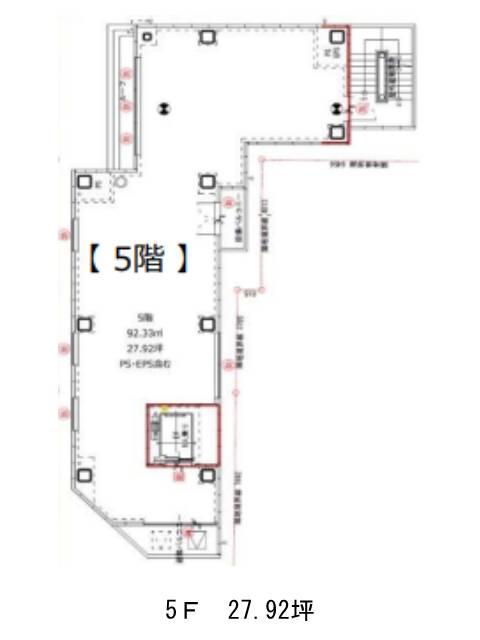
ENetial神保町 5階
物件概要
物件番号
402-00425-3物件名
ENetial神保町所在地
- 東京都千代田区神田神保町1-34-1
- アクセスマップ
面積
27.92坪賃料(共益費含)
月額693,000円(24,821円/坪)
入居日
即保証金
3,780,089円礼金
1ケ月更新料
新1ケ月償却費
なし竣工
2023年11月構造
RC規模
地上6階/地下1階トイレ
男女共用空調
エレベーター
有セキュリティ
駐車場
無耐震
新耐震基準基準階天井高
空室延床面積
142.96坪情報更新日
2025/12/25ENetial神保町のテナント募集中区画
…新着物件
ENetial神保町のアクセス
ENetial神保町の物件情報
ENetial神保町(千代田区神田神保町)は神保町駅(A5番出口)から徒歩3分の賃貸オフィスです。ENetial神保町は神保町駅(A5番出口)の他に御茶ノ水駅(御茶ノ水橋口)徒歩9分、水道橋駅(東口)徒歩9分で利用も可能です。

