第一NSビルのテナント募集中区画
| 階数 | 面積 | 賃料(共益費含む) | 保証金 | 入居可能日 | 検討リスト | 詳細 |
|---|---|---|---|---|---|---|
| 1 | 27.96坪 | 553,608円/月(19,800円/坪) | 447万円 | 即 |
…新着物件
アクセス
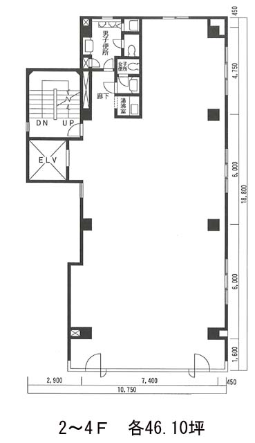
第一NSビルの物件情報
第一NSビル(千代田区神田須田町)は神田駅(5番出口)から徒歩2分の賃貸オフィスです。第一NSビルは神田駅(5番出口)の他に淡路町駅(A1番出口)徒歩4分、小川町駅(A1番出口)徒歩4分で利用も可能です。

