弓矢四国ビル 4階新着
物件概要
物件番号
403-00210-30物件名
弓矢四国ビル所在地
- 東京都千代田区神田須田町1-6
- アクセスマップ
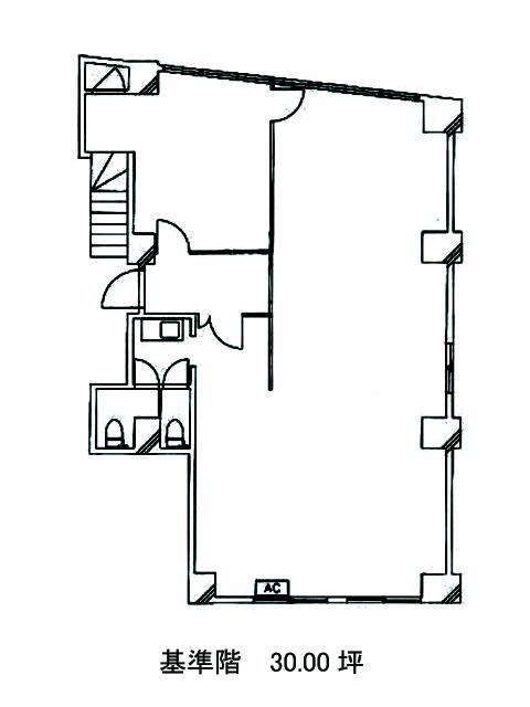
面積
30.00坪賃料(共益費含)
月額462,000円(15,400円/坪)
入居日
即保証金
2,760,000円礼金
なし更新料
なし償却費
1ケ月竣工
1975年構造
規模
地上6階トイレ
男女別空調
個別空調エレベーター
有セキュリティ
有駐車場
無耐震
旧耐震基準基準階天井高
空室延床面積
30.00坪情報更新日
2026/03/31弓矢四国ビルのテナント募集中区画
| 階数 | 面積 | 賃料(共益費含む) | 保証金 | 入居可能日 | 検討リスト | 詳細 |
|---|---|---|---|---|---|---|
| 4 | 30.00坪 | 462,000円/月(15,400円/坪) | 276万円 | 即 |
…新着物件
弓矢四国ビルのアクセス
弓矢四国ビルの物件情報
弓矢四国ビル(千代田区神田須田町)は淡路町駅(A1番出口)から徒歩2分の賃貸オフィスです。弓矢四国ビルは淡路町駅(A1番出口)の他に小川町駅(A1番出口)徒歩2分、神田駅(5番出口)徒歩4分で利用も可能です。

