5階は現在募集がありません
KSYビル 5階
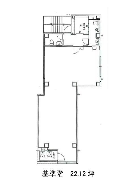
物件概要
KSYビルのテナント募集中区画
現在、空室がございません。
アクセス
KSYビルの物件情報
KSYビル(千代田区神田須田町)は岩本町駅(A2番出口)から徒歩2分の賃貸オフィスです。KSYビルは岩本町駅(A2番出口)の他に秋葉原駅(5番出口)徒歩4分、神田駅(6番出口)徒歩6分で利用も可能です。

