4階は現在募集がありません
1フロア募集区画あり

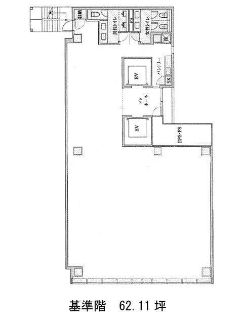
PMO神田岩本町 4階

前の写真 次の写真

物件概要

物件番号

403-00286-3

物件名

PMO神田岩本町

所在地

面積

62.11坪

賃料(共益費含)


入居日

募集終了

保証金

礼金

更新料

償却費

竣工

2017年1月

構造

規模

地上10階

トイレ

男女別

空調

個別空調

エレベーター

セキュリティ

駐車場

耐震

新耐震基準

基準階天井高

2700mm

空室延床面積

62.11坪

最寄駅

情報更新日

2025/11/25

PMO神田岩本町のテナント募集中区画

階数 面積 賃料(共益費含む) 保証金 入居可能日 検討リスト 詳細
7 62.11坪 応相談(応相談) 応相談 2026年1月上旬
…新着物件

アクセス

PMO神田岩本町の物件情報

PMO神田岩本町(千代田区神田須田町)は岩本町駅(A2番出口)から徒歩1分の賃貸オフィスです。
靖国通りに面した立地です。都営新宿線の岩本町駅A2出口から徒歩1分なので急な雨でも安心です。2017年竣工の築浅物件です。外観は、前面ガラス張りとブラックの壁面とのコントラストが美しい視認性の高い、スタイリッシュなオフィスビルです。エントランスホールには、テナント専用の喫煙室や多目的トイレなど、便利な設備が充実しています。室内は男女別のトイレ、広めの給湯室があり、快適に過ごせます。飲食店の多い神田駅、秋葉原駅にも徒歩5分程で行けるのでランチにも便利です。
PMO神田岩本町は岩本町駅(A2番出口)の他に秋葉原駅(5番出口)徒歩4分、神田駅(5番出口)徒歩5分で利用も可能です。

近隣のエリア・駅から探す