PMO神田岩本町のテナント募集中区画
| 階数 | 面積 | 賃料(共益費含む) | 保証金 | 入居可能日 | 検討リスト | 詳細 |
|---|---|---|---|---|---|---|
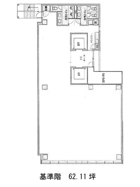
| 7 | 62.11坪 | 応相談(応相談) | 応相談 | 即 |
…新着物件
アクセス
PMO神田岩本町の物件情報
PMO神田岩本町(千代田区神田須田町)は岩本町駅(A2番出口)から徒歩1分の賃貸オフィスです。靖国通りに面した立地です。都営新宿線の岩本町駅A2出口から徒歩1分なので急な雨でも安心です。2017年竣工の築浅物件です。外観は、前面ガラス張りとブラックの壁面とのコントラストが美しい視認性の高い、スタイリッシュなオフィスビルです。エントランスホールには、テナント専用の喫煙室や多目的トイレなど、便利な設備が充実しています。室内は男女別のトイレ、広めの給湯室があり、快適に過ごせます。飲食店の多い神田駅、秋葉原駅にも徒歩5分程で行けるのでランチにも便利です。PMO神田岩本町は岩本町駅(A2番出口)の他に秋葉原駅(5番出口)徒歩4分、神田駅(5番出口)徒歩5分で利用も可能です。

