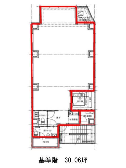
ACN秋葉原スクエア 2階
物件概要
ACN秋葉原スクエアのテナント募集中区画
| 階数 | 面積 | 賃料(共益費含む) | 保証金 | 入居可能日 | 検討リスト | 詳細 |
|---|---|---|---|---|---|---|
| 2 | 30.06坪 | 応相談(応相談) | 応相談 | 即 |
…新着物件
アクセス
ACN秋葉原スクエアの物件情報
ACN秋葉原スクエア(千代田区神田須田町)は神田駅(6番出口)から徒歩4分の賃貸オフィスです。ACN秋葉原スクエアは神田駅(6番出口)の他に秋葉原駅(A1番出口)徒歩4分、岩本町駅(A2番出口)徒歩5分で利用も可能です。

