7階は現在募集がありません
1フロア募集区画あり

ACN秋葉原スクエア 7階

前の写真 次の写真

物件概要

物件番号

403-00315-6

物件名

ACN秋葉原スクエア

所在地

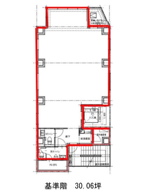
面積

30.06坪

賃料(共益費含)


入居日

募集終了

保証金

礼金

更新料

償却費

竣工

2024年7月

構造

S造

規模

地上12階

トイレ

男女別

空調

個別空調

エレベーター

セキュリティ

駐車場

耐震

新耐震基準

基準階天井高

3400mm

空室延床面積

30.06坪

最寄駅

情報更新日

2026/03/23

ACN秋葉原スクエアのテナント募集中区画

階数 面積 賃料(共益費含む) 保証金 入居可能日 検討リスト 詳細
9 30.06坪 応相談(応相談) 応相談
…新着物件

ACN秋葉原スクエアのアクセス

ACN秋葉原スクエアの物件情報

ACN秋葉原スクエア(千代田区神田須田町)は神田駅(6番出口)から徒歩4分の賃貸オフィスです。
ACN秋葉原スクエアは神田駅(6番出口)の他に秋葉原駅(A1番出口)徒歩4分、岩本町駅(A2番出口)徒歩5分で利用も可能です。

近隣のエリア・駅から探す