8階は現在募集がありません
協友ビル 8階
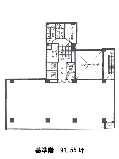
物件概要
協友ビルのテナント募集中区画
現在、空室がございません。
アクセス
協友ビルの物件情報
協友ビル(千代田区神田須田町)は岩本町駅(A6番出口)から徒歩1分の賃貸オフィスです。協友ビルは岩本町駅(A6番出口)の他に秋葉原駅(5番出口)徒歩3分、神田駅(5番出口)徒歩6分で利用も可能です。

