大橋ビル 4階
物件概要
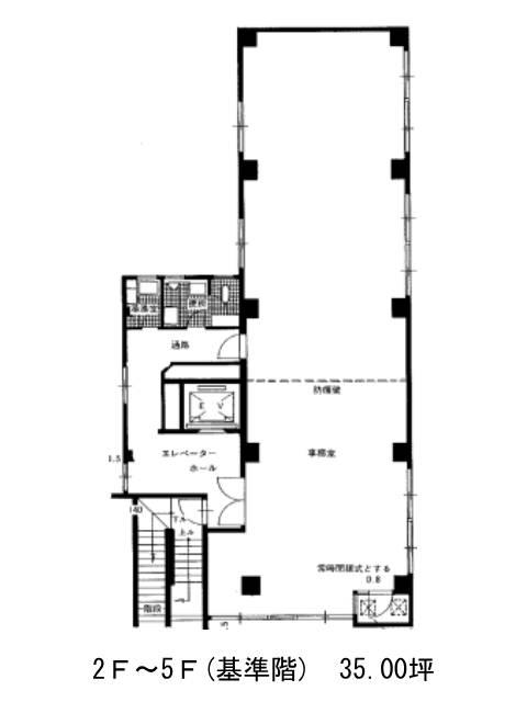
大橋ビルのテナント募集中区画
| 階数 | 面積 | 賃料(共益費含む) | 保証金 | 入居可能日 | 検討リスト | 詳細 |
|---|---|---|---|---|---|---|
| 2 | 35.00坪 | 481,250円/月(13,750円/坪) | 350万円 | 即 | ||
| 4 | 35.00坪 | 481,250円/月(13,750円/坪) | 350万円 | 即 |
…新着物件
アクセス
大橋ビルの物件情報
大橋ビル(千代田区神田多町)は神田駅(5番出口)から徒歩3分の賃貸オフィスです。大橋ビルは神田駅(5番出口)の他に淡路町駅(A1番出口)徒歩4分、小川町駅(A1番出口)徒歩4分で利用も可能です。

