神田カドウチのテナント募集中区画
| 階数 | 面積 | 賃料(共益費含む) | 保証金 | 入居可能日 | 検討リスト | 詳細 |
|---|---|---|---|---|---|---|
| 8 | 27.07坪 | 744,425円/月(27,500円/坪) | 406万円 | 2026年1月 |
…新着物件
アクセス
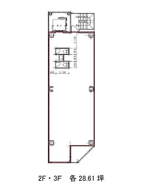
神田カドウチの物件情報
神田カドウチ(千代田区神田鍛冶町)は神田駅(4番出口)から徒歩1分の賃貸オフィスです。神田カドウチは神田駅(4番出口)の他に小川町駅(A1番出口)徒歩6分、淡路町駅(A1番出口)徒歩6分で利用も可能です。

