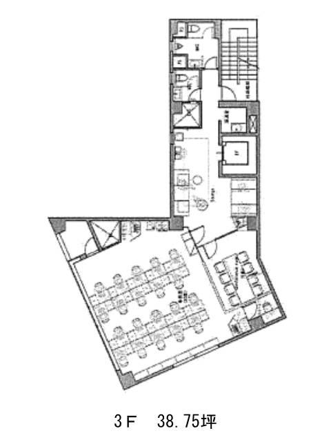
3階は現在募集がありません
2フロア募集区画あり

翔和神田ビルⅡ 3階

前の写真 次の写真

物件概要

物件番号

410-00020-40

物件名

翔和神田ビルⅡ

所在地

面積

38.75坪

賃料(共益費含)


入居日

募集終了

保証金

礼金

更新料

償却費

竣工

1993年9月

構造

SRC

規模

地上9階/地下1階

トイレ

男女別

空調

個別空調

エレベーター

セキュリティ

駐車場

耐震

新耐震基準

基準階天井高

2560mm

空室延床面積

71.77坪

最寄駅

情報更新日

2026/01/21

翔和神田ビルⅡのテナント募集中区画

階数 面積 賃料(共益費含む) 保証金 入居可能日 検討リスト 詳細
地下1 33.02坪 508,508円/月(15,400円/坪) 181万円
2 38.75坪 980,375円/月(25,300円/坪) 387万円
…新着物件

アクセス

翔和神田ビルⅡの物件情報

翔和神田ビルⅡ(千代田区神田東松下町)は岩本町駅(A5番出口)から徒歩3分の賃貸オフィスです。
翔和神田ビルⅡは岩本町駅(A5番出口)の他に神田駅(東口)徒歩6分、秋葉原駅(5番出口)徒歩6分で利用も可能です。

近隣のエリア・駅から探す